Antigua Sirena de Punta Almina
Protección Estructural E-044
Ref. catastral: 55101A00200335
Arquitecto: Desconocido
1921
IDENTIFICACIÓN
Tipo: Arquitectura Civil.
Subtipo: Transportes y comunicaciones.
DESCRIPCIÓN:
Estructura: Edificio aislado de una planta y de carácter singular.
Cubierta: Plana con peto.
ACTUACIONES:
Se permiten actuaciones relativas a obras de restauración, de rehabilitación y de reestructuración. Realización del Informe de Evaluación de Edificio regulado en la Real Decreto Legislativo 7/2015 de 30 de octubre, por el que se aprueba el texto refundido de la Ley de Suelo y Rehabilitación Urbana.
fotos antiguas
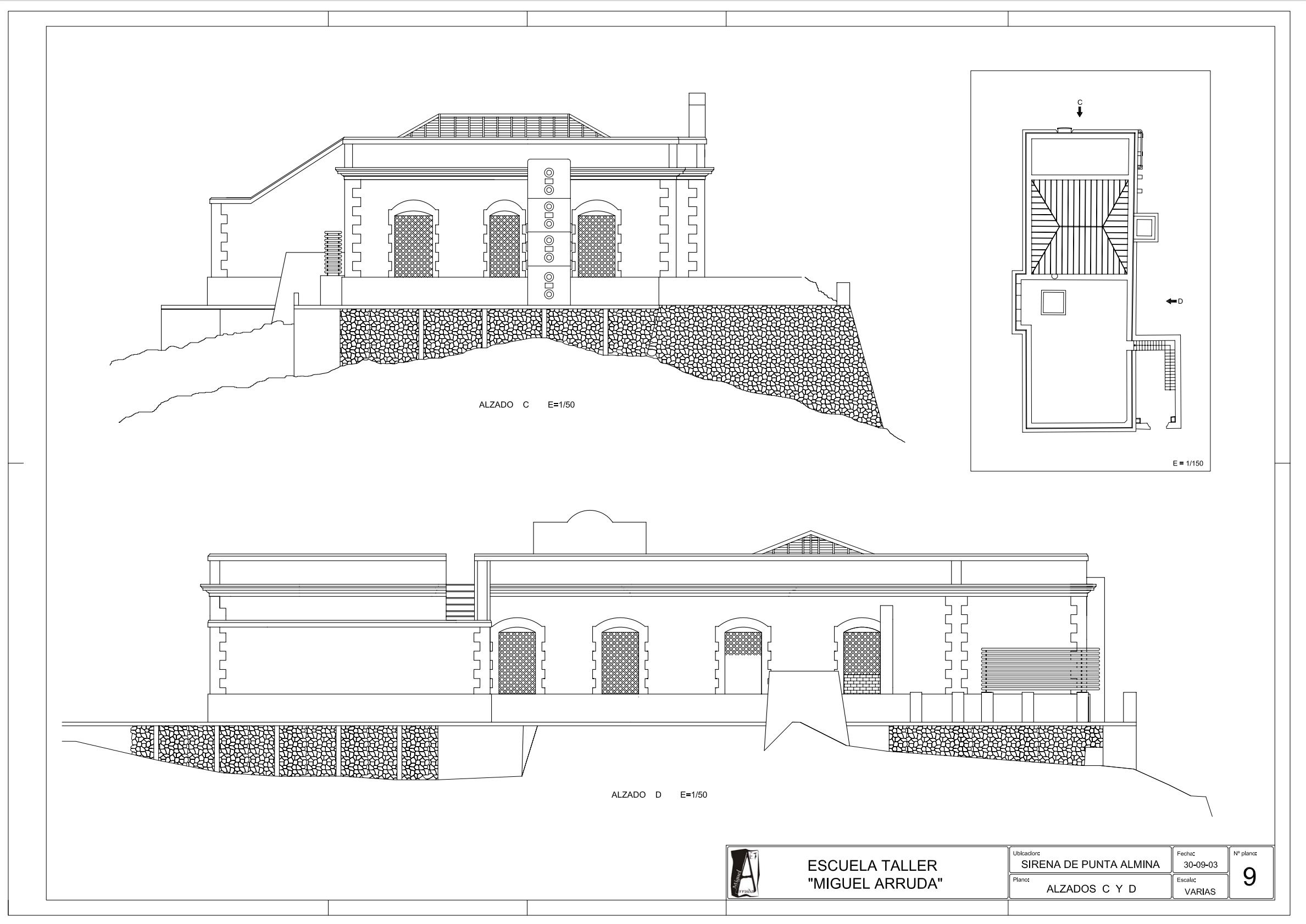
planos antiguos
fotos actuales
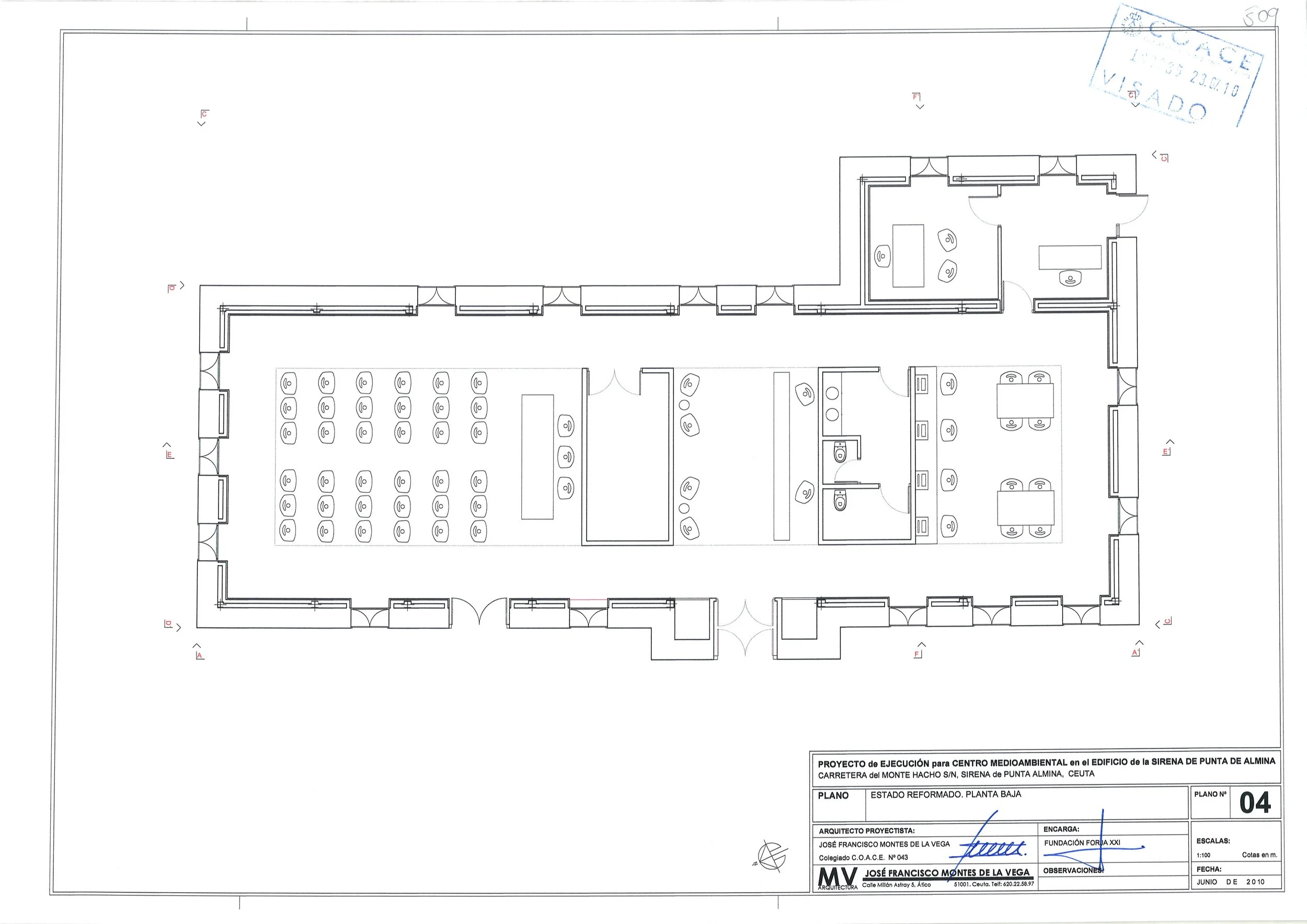
planos actuales

