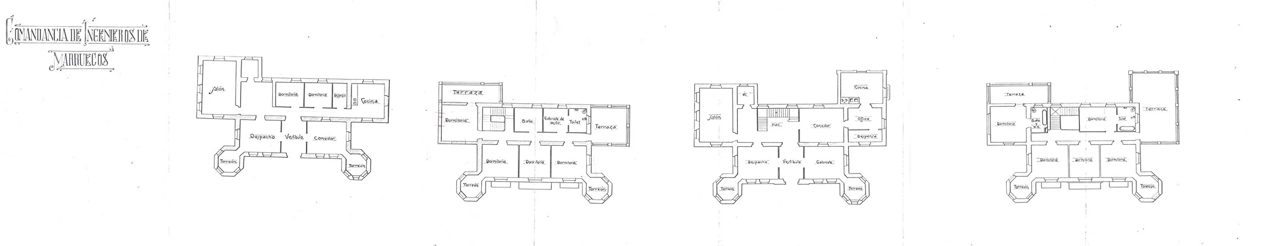
Residencia Otero
Protección Estructural E-050
Ref. catastral 9943003TE8794S
Arquitecto: Cortina Pérez
1924
IDENTIFICACIÓN
Tipo: Arquitectura Militar
Subtipo: Residencial
DESCRIPCIÓN:
Estructura: Edificación aislada de carácter singular
ACTUACIONES:
Se permiten actuaciones relativas a obras de restauración, de rehabilitación y de reestructuración. Realización del Informe de Evaluación de Edificio regulado en la Real Decreto Legislativo 7/2015 de 30 de octubre, por el que se aprueba el texto refundido de la Ley de Suelo y Rehabilitación Urbana.

