El Portaviones
Protección Integral I-007
Ref. catastral: 1942103TE9714S
Arquitectos: José Blein Zarazaga / Gaspar Blein Zarazaga
1927
IDENTIFICACIÓN
Tipo: Arquitectura Civil
Subtipo: Residencial
DESCRIPCIÓN
Estructura: Edificación en esquina entre medianeras de siete plantas formando manzana.
Cubierta: plana con peto.
ACTUACIONES
Se permiten actuaciones relativas a obras de restauración y de rehabilitación
Supresión de cableado y aparatos de aire acondicionado en fachada.
Adecuación del zócalo comercial al diseño original del edificio.
Adecuación de cartelería comercial a composición y colores del edificio.
fotos antiguas
hormigón y acero
En mayo de 1934 se publica el primer número de la revista técnica de construcción, Hormigón y Acero, dirigida por los ingenieros Eduardo Torroja y Enrique García Reyes, con el objetivo de dar a conocer el uso del hormigón armado tanto en ingeniería como en arquitectura. Para ello cuenta con un selecto grupo de ingenieros y arquitectos, la mayoría profesores de las mejores universidades europeas; Universidad de Lieja, Technische Hochschule de Berlín, Technische Hochschule de Stuttgart, Politécnico de Zurich, Technische Hochschule de Viena, Politécnico de Milán… A lo largo del siglo XX, algunos de estos ingenieros se convirtieron en referencia para el cálculo de estructuras y aún son estudiados en escuelas de ingeniería y arquitectura; Campus, Dischinger, Freyssinet, Graf, Lossier, Ross, Saliger, Satarella, Terzaghi, Torroja…
En el primer número aparece un artículo firmado por Gaspar Blein Zarazaga, autor junto a sur hermano José del edificio de viviendas conocido como el PORTAAVIONES. Con el título Arquitectura de Hormigón, hace un repaso a la arquitectura europea reciente de los años 20 construida con hormigón armado, entre los que se encuentra el edificio construido en la calle Isabel Cabral 1 de Ceuta, mostrando cómo la ciudad estaba en esos años a la vanguardia arquitectónica.
La revista al completo puede descargarse desde la página de la Biblioteca Nacional de España, si bien puede leer la editorial y el artículo mencionado a continuación.
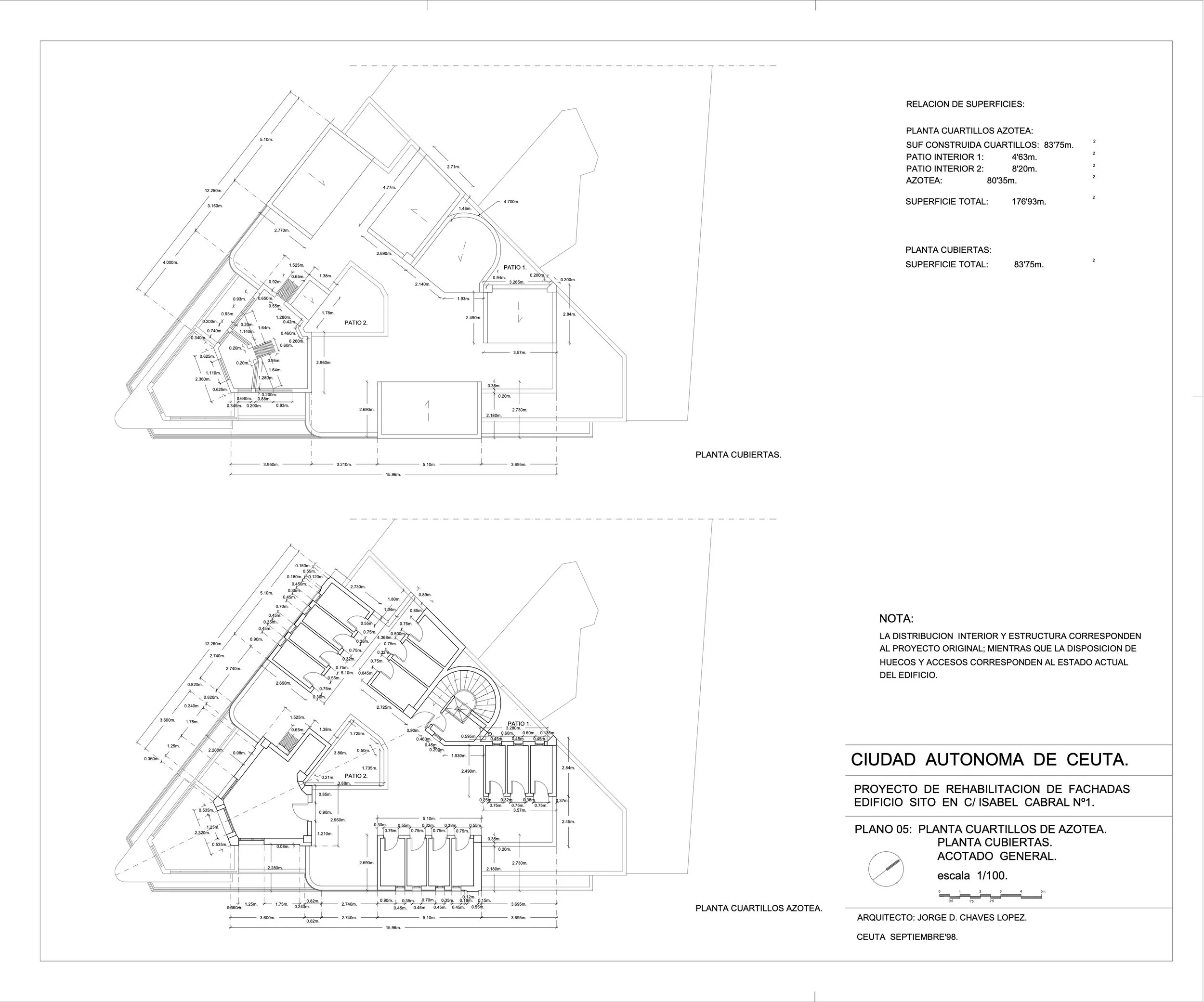
planos antiguos
planos actuales
fotos actuales
escaneo 3D
expediente
Dirección Provincial Ministerio de Cultural

