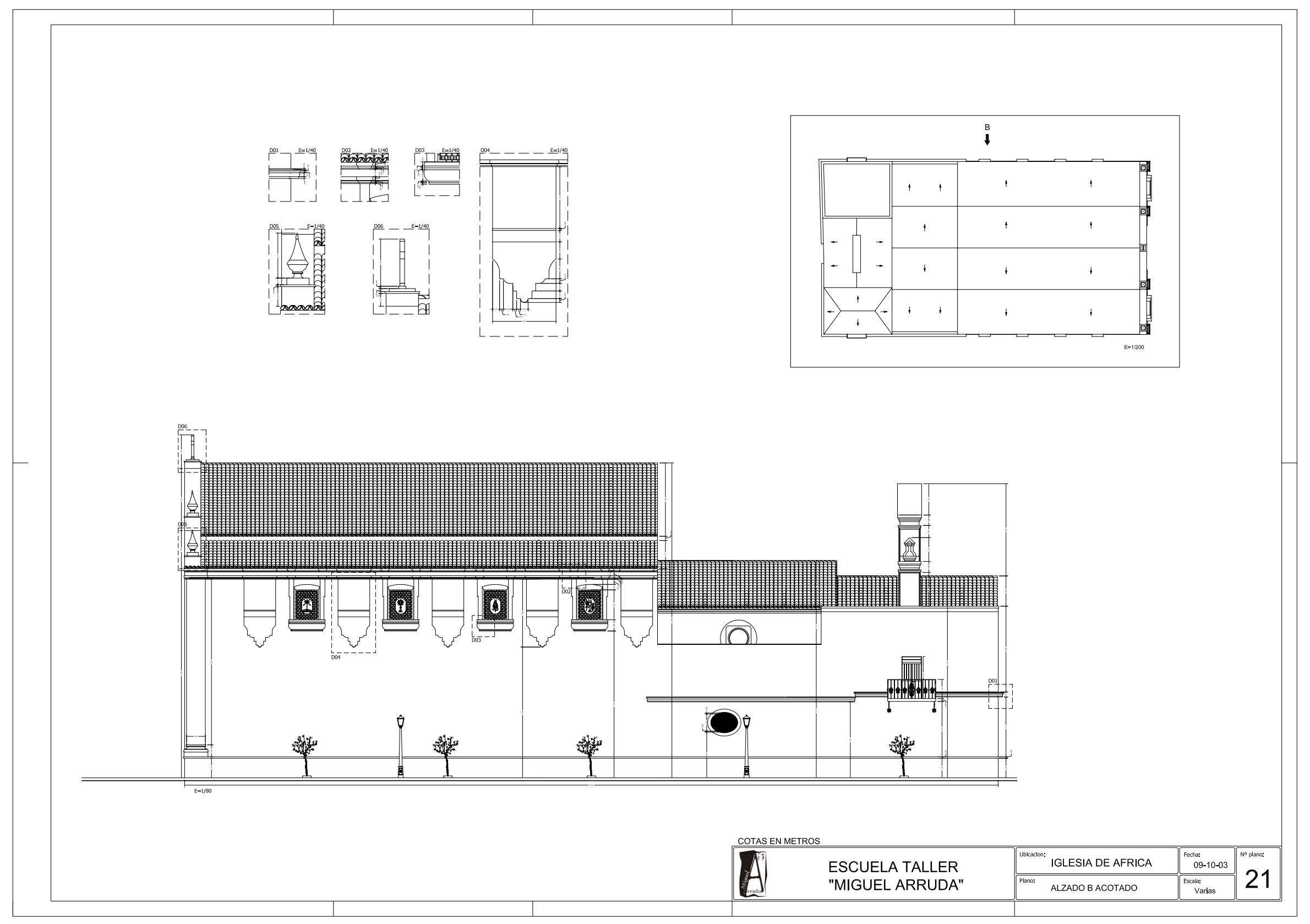
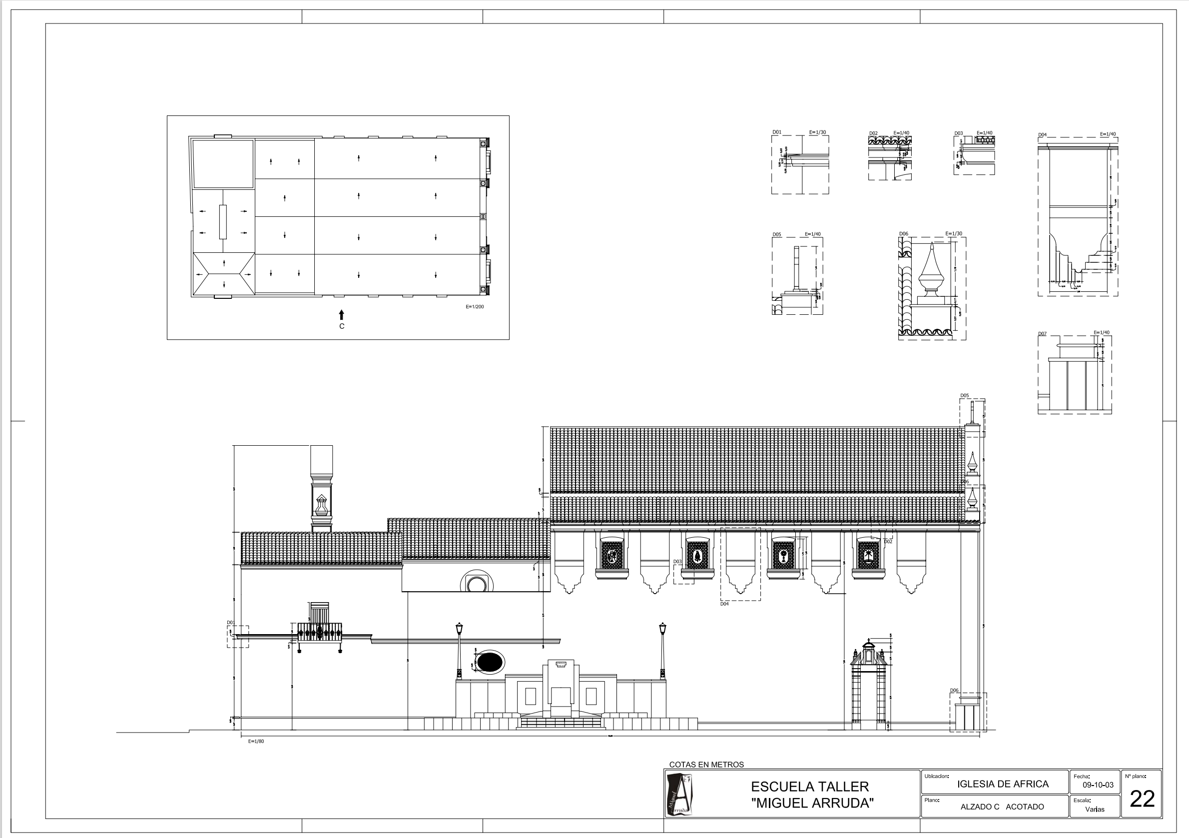
Parroquia Iglesia Nuestra Señora de África
Protección Integral I-002
Ref. catastral: 1043001TE9714S
Arquitecto: Francisco J. Pérez Buades.
S.XVIII
IDENTIFICACIÓN:
Tipo: Arquitectura Religiosa
Subtipo: Cultural
DESCRIPCIÓN:
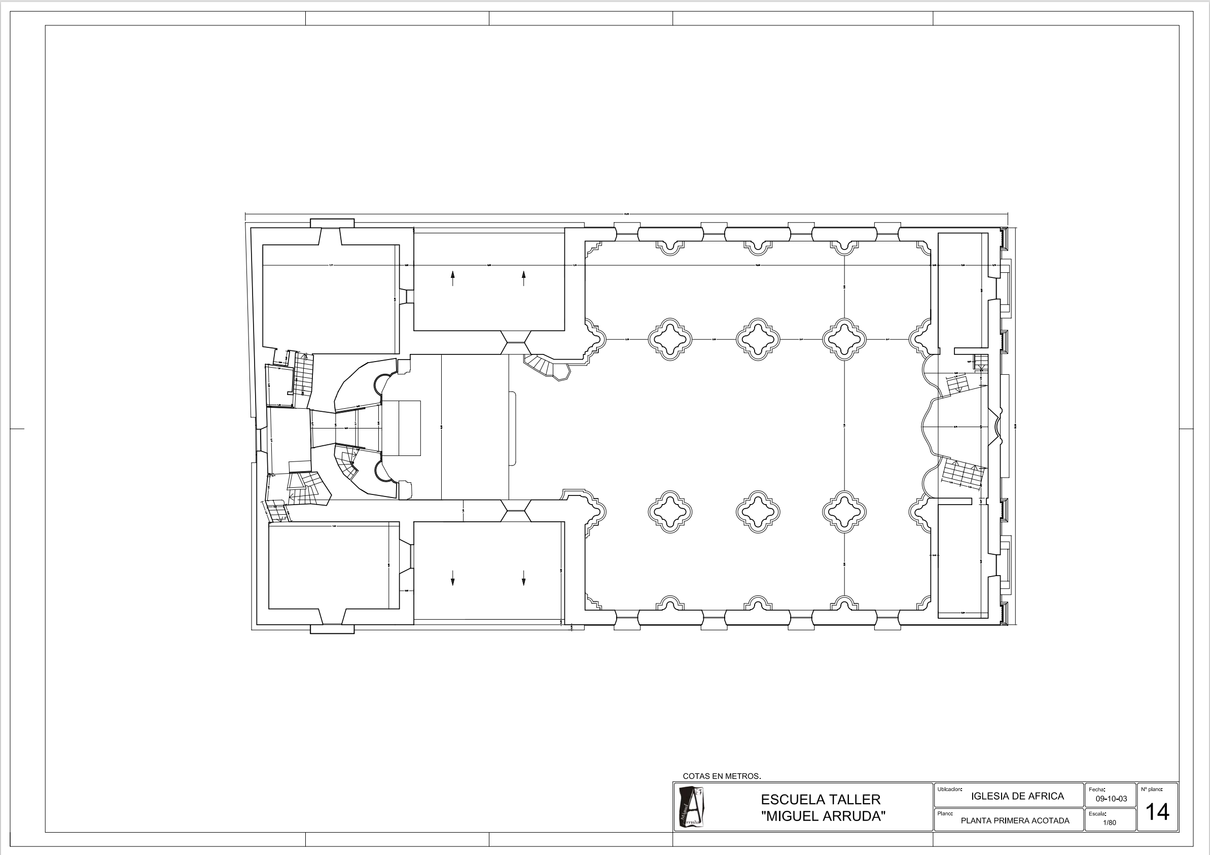
Estructura: Edificación aislada de carácter singular .
Cubierta: A dos aguas de teja cerámica.
Fue reedificado a finales del siglo XVII y añadido su cuerpo de iglesia, de tres naves, a mediados del siglo XVIII
ACTUACIONES:
Se permiten actuaciones relativas a obras de restauración y de rehabilitación. Realización del Informe de Evaluación de Edificio regulado en la Real Decreto Legislativo 7/2015 de 30 de octubre, por el que se aprueba el texto refundido de la Ley de Suelo y Rehabilitación Urbana.
fotos antiguas
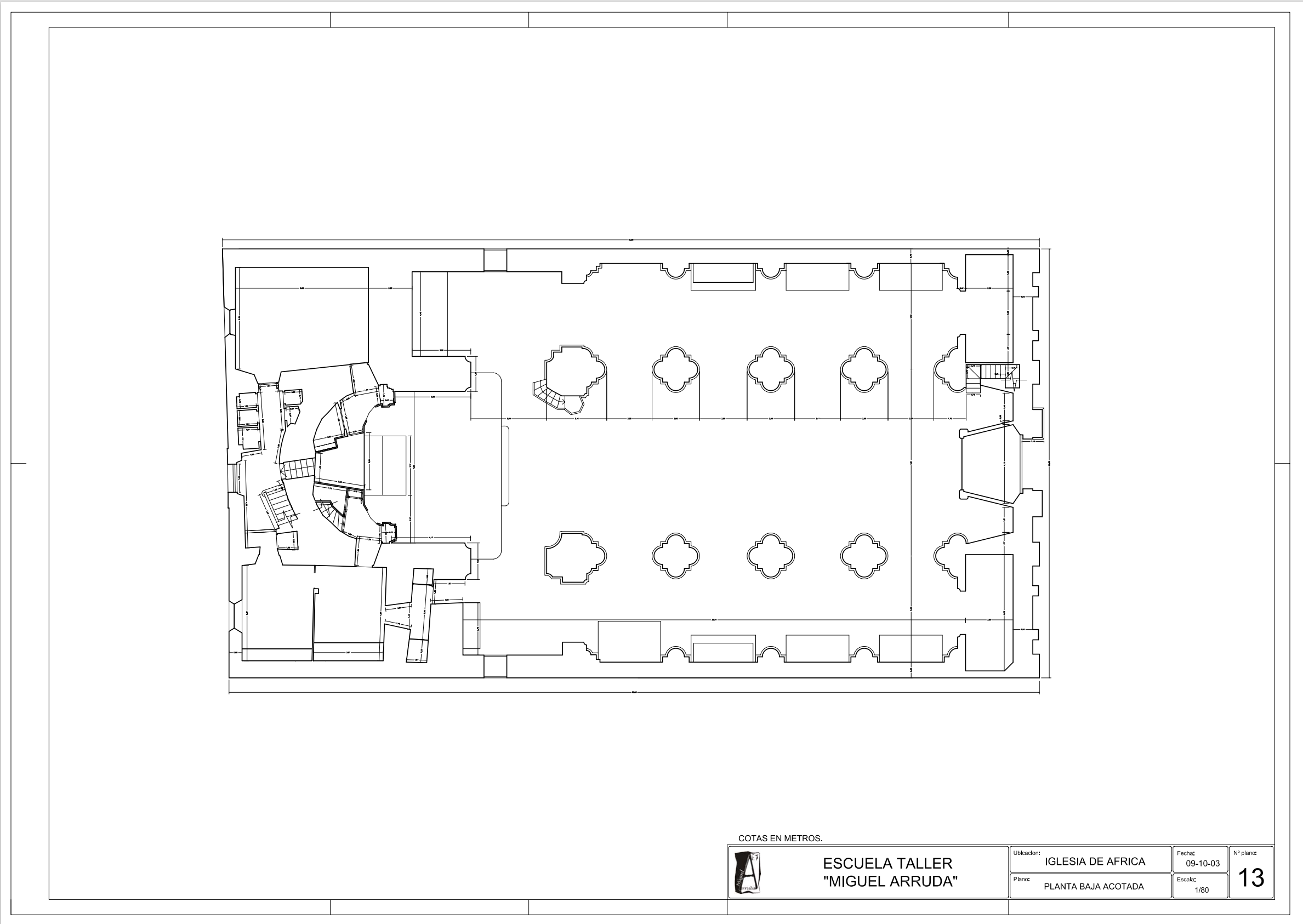
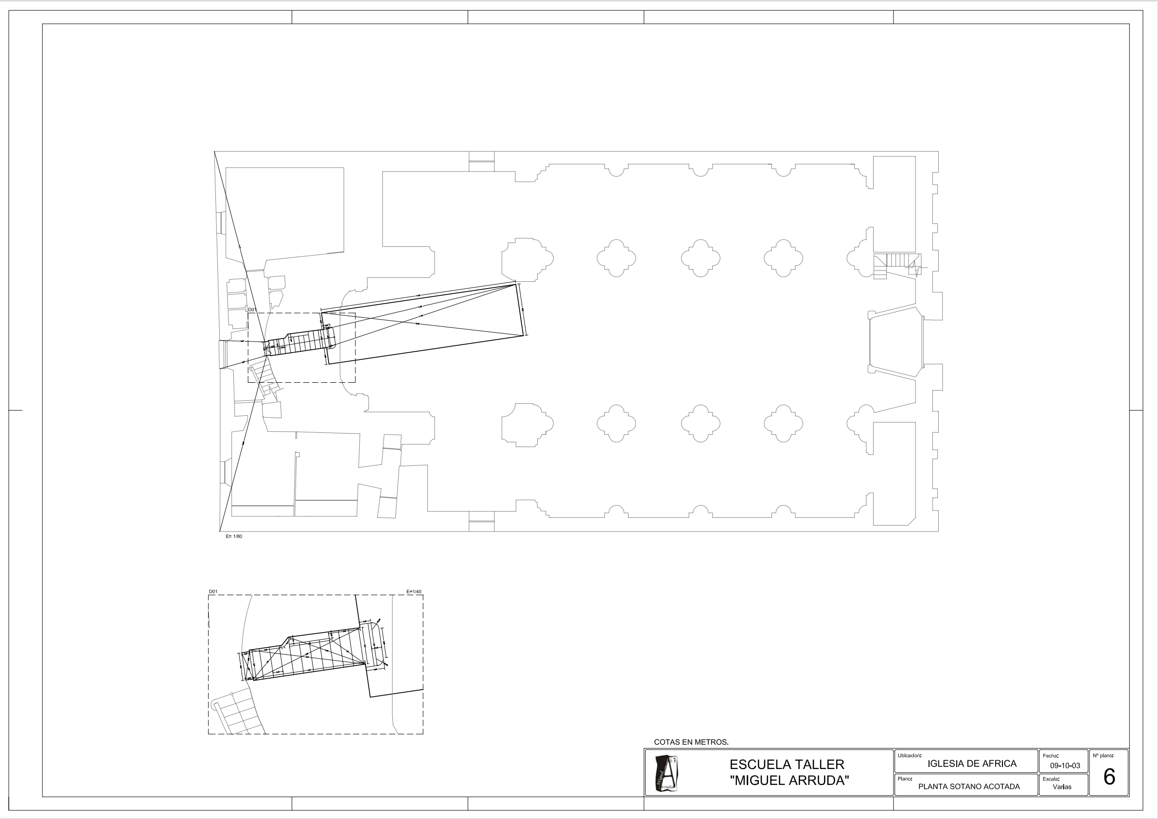
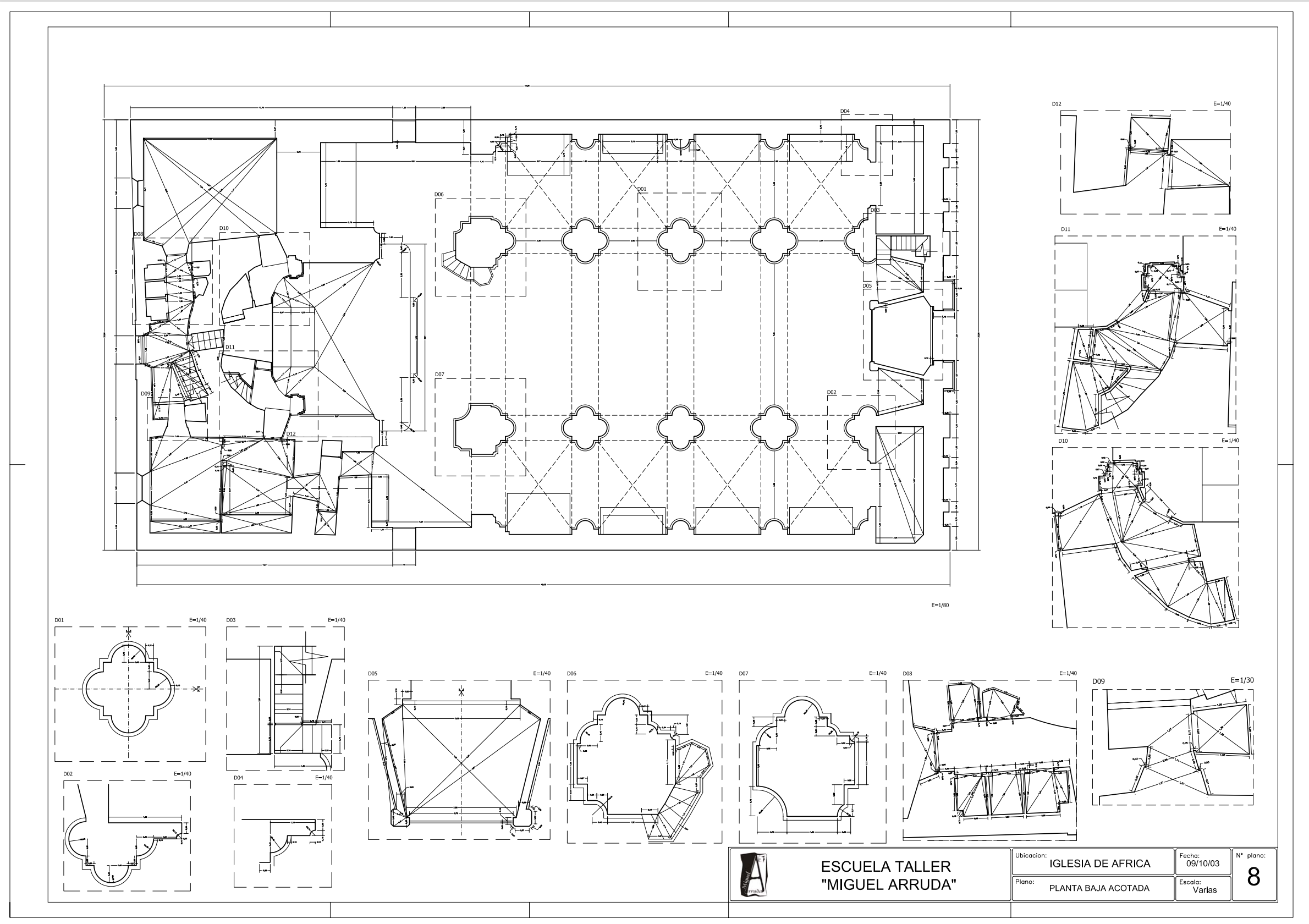
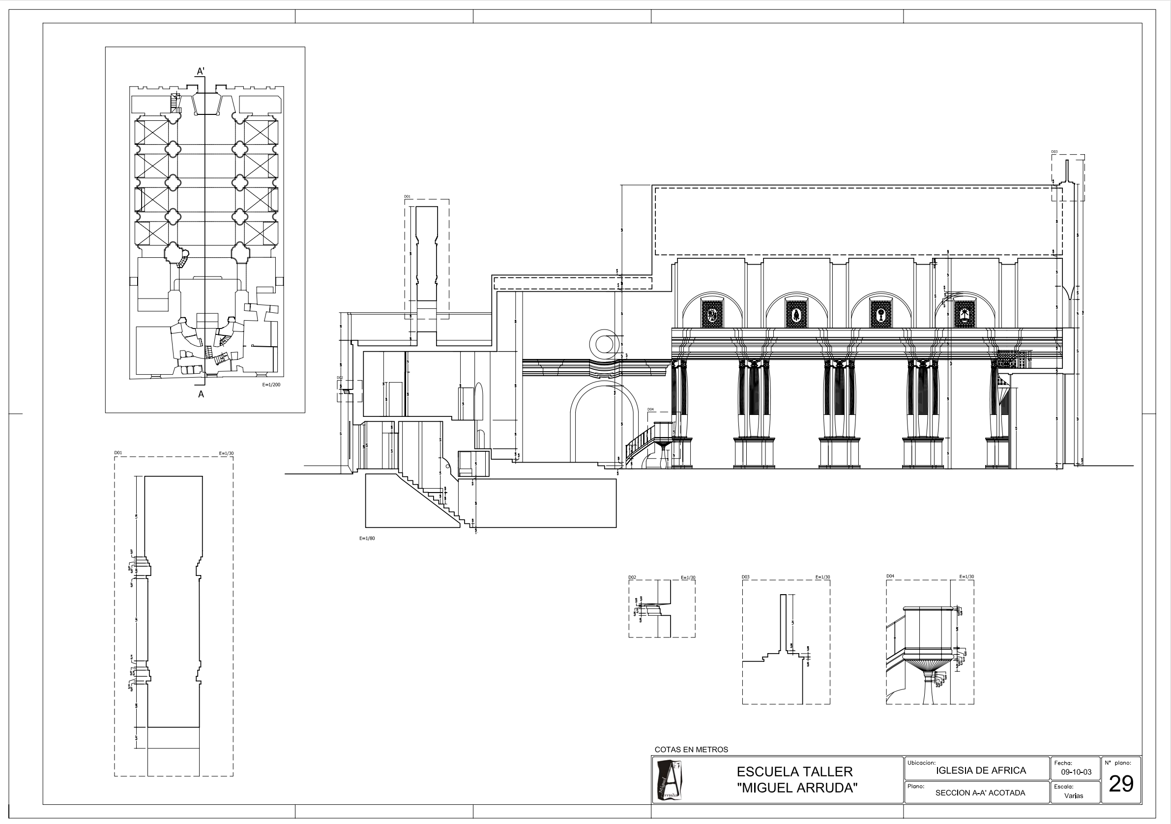
planos antiguos
fotos actuales

