Fortín de la Palmera
HS07
(R.I.) - 53 - 0000500 - 00021
Texto extraído del artículo publicado en el número 42 de la revista Almoraima (2011), El conjunto histórico del Recinto del Hacho de Ceuta. Elementos del siglo XVIII, de Pedro Gurriarán Daza, Ángel J. Sáez Rodríguez y Salvador García Villalobos.
Ref. Catastral: 3645701TE9734N0001PI
Ingeniero: desconocido
Siglo XVIII
DESCRIPCIÓN
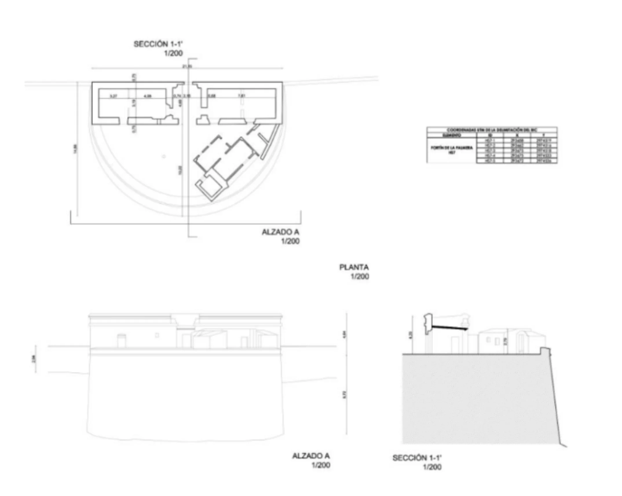
El Fortín de la Palmera es una pequeña fortificación artillería que se configura como un único edificio autónomo.
Controlaba con sus cañones la zona intermedia del frente sur de la península del Hacho, en Ceuta, entre las baterías del Quemadero y del Desnarigado. Su misión supera la preocupación más básica de dominar las calas en las que podían hacerse desembarcos para ampliarse al dominio de las aguas ceutíes, al objeto de impedir siquiera la aproximación de embarcaciones hostiles que quisiese rodear Punta Almina rumbo al Estrecho y el Atlántico.
Esta batería responde al esquema más básico de emplazamiento de artillería de costa de la Edad Moderna. Se trata de una porción de tronco de cono empotrado en la ladera de la montaña, en una zona muy escarpada, cerrada por la gola por una edificación sencilla que actúa de cuartel para la reducida guarnición del enclave. La voluminosa estructura pétrea permite adelantar la posición artillera hacia el vacío del acantilado, ganando campo de tiro libre de obstáculos laterales. Por otra parte, la poderosa estructura de la base resultaba lo suficientemente resistente para soportar el juego de las piezas de grueso calibre que actuaban sobre ella, impidiendo su rápida destrucción, como solía ocurrir en emplazamientos poco estables. El solado con losas de piedra en disposición radial facilitaba estas operaciones.
La disposición de la batería a la barbeta facilitaba el emplazamiento de los cañones sin obstáculos y con la orientación precisa para concentrar su tiro sobre un mismo objetivo. El pretil, de un metro escaso de altura, remata con ladrillos a sardinel. Por otra parte, la relativamente elevada cota (35 m.s.n.m.) a la que se sitúa la pequeña fortificación permitía desenfilar a piezas y servidores de la artillería naval que pudiese atacarlos, haciendo enormemente rentable tan reducida posición frente a enemigos mucho más poderosos.
La posición dispone de un pequeño edificio de cien metros cuadrados, organizado en una sola planta, a modo de cuartel para la guarnición. Se encuentra alterado por aprovechamientos posteriores a su vida militar. En ella estarían los alojamientos de tropa y oficial, el repuesto de pólvora y la cocina. Su muro oriental conserva las aspilleras para fusileros para la defensa a corta distancia. No quedan restos de los mismos en los restantes frentes. La letrina se disponía en la esquina este de la plataforma artillera y su garita no se aprecia en la actualidad, destruida o camuflada por una de las edificaciones modernas que desvirtúan el monumento.

