Faro de Punta Almina
Protección Estructural E-043
Ref. catastral: 002500200TE97E
Ingeniero: Juan Martínez de la Villa
Tánger (más fotos al final de la página)
1855
IDENTIFICACIÓN
Tipo: Arquitectura civil
Subtipo: Comunicaciones
DESCRIPCIÓN
Estructura: Edificio aislado de carácter singular
Cubierta: Plana transitable
ACTUACIONES
Se permiten actuaciones relativas a obras de restauración, de rehabilitación y de reestructuración. Realización del Informe de Evaluación de Edificio regulado en la Real Decreto Legislativo 7/2015 de 30 de octubre, por el que se aprueba el texto refundido de la Ley de Suelo y Rehabilitación Urbana.
La construcción se inició en 1851 y entró en servicio en 1855. Considerado como uno de los más antiguos de África todavía en funcionamiento sólo superado por tres faros en Sudáfrica; el faro de Green Point en Ciudad del Cabo, operativo desde 1824; el de cabo de las Agujas de 1849; el del cabo Recife de 1851. En el estrecho de Gibraltar, además del de Ceuta, se encuentra el del cabo Espartel en Tánger (que funciona desde 1864), el de Gibraltar (1841) y el de Tarifa (1813).
Gibraltar
Autoridad Portuaria de Ceuta
En el mes de Marzo de 1851, comenzaron las obras del Faro de Punta Almina bajo la dirección del Ingeniero de Caminos, Canales y Puertos Don Juan Martínez de la Villa, aunque no será hasta la noche del primero de Diciembre de 1885 cuando comenzara a alumbrar para seguridad de las embarcaciones que cruzan el Estrecho de Gibraltar.
El Faro, se encuentra en el promontorio de la Almina que mas avanza al mar de levante, a tres kilómetros de Ceuta y poco mas de un kilómetro de la fortaleza del Hacho, en el denominado cerro de los Mosqueros, su situación geográfica es de 35º53'40" Latitud Norte y 005º16'50" Longitud Oeste, pero no siempre se reseña esta posición, ya que no es hasta 1883 cuando se reconoce mundialmente al meridiano de Greenwich como meridiano cero.
Hasta ese momento cada país tenia su meridiano de referencia, en el caso de España, se tomaba el meridiano que pasa por San Fernando, encontrándose este 6º12'40" al oeste del de Greenwich, por lo tanto en los derroteros y publicaciones de la época nos encontraremos la siguiente situación geográfica de nuestro faro, 0º53'18" Longitud Oeste y 35º53'40" Latitud del observatorio de San Fernando.
En el mes de marzo de 1851, comenzaron las obras de construcción del Faro de Punta Almina bajo la dirección del Ingeniero de caminos, canales y puertos don Juan Martínez de la Villa, aunque no será hasta la noche del primero de diciembre de 1885 cuando comenzara a alumbrar para seguridad de las embarcaciones que cruzan el estrecho de Gibraltar.
El Faro, se encuentra en el promontorio de la Almina que más avanza al mar de levante, a tres kilómetros de Ceuta y poco mas de un kilómetro de la fortaleza del Hacho, en el denominado cerro de los Mosqueros, su situación geográfica es de 35º53’40” Latitud Norte y 005º16'50” Longitud Oeste, pero no siempre se Teseña esta posición, ya que no es hasta 1883 cuando se reconoce mundialmente al meridiano de Greenwich como meridiano cero, cada país tenía su propio meridiano de referencia, en el caso de España, se tomaba del meridiano que pasa por el observatorio de San Fernando, encontrándose este 6º12’20” al oeste del meridiano de Greenwich, por lo tanto en los derroteros y publicaciones de la época nos encontraremos la siguiente situación geográfica de nuestro Faro, 0º54'18” Longitud Oeste y 35º53'40” latitud del observatorio de San Fernando.
Para esta ubicación, tubo un gran empeño el Duque de Montpensier (1), que incluso contribuyo con una suma importante para los gastos de construcción del Faro.
Rodeado de pinares (en la actualidad de antenas de radio, radares y eucaliptos, tan solo quedan dos pinos) desde su torre que se eleva 145,17 metros sobre el nivel del mar, se divisa a simple vista en días claros de poniente, toda la costa peninsular desde Tarifa a los montes de Málaga, al sur la costa marroquí hasta Cabo Negro, con las montañas del Rif al fondo, por las noches, las luces de los faros de Tarifa, Punta Carnero, Punta Europa y Punta Doncella.
El edificio, de fabrica, sólida y elegante, de planta cuadrada de 60 pies cada lado, consta de dos cuerpos laterales (ampliados con posterioridad en? ) Y uno central, a la entrada del vestíbulo existe una escalinata de once peldaños y del eje que pasa por el centro del edificio arranca una torre, cuyo diámetro es de 15 pies. El vestíbulo tiene a derecha e izquierda pabellones para vivienda de los empleados, almacén y deposito de repuestos para el servicio.
En el cuerpo principal se halla la camara y antecamara de subida al aparato, en la camara hay una mesa y ascensores en los laterales por donde suben y descienden las pesas del aparato, por la camara se da ingreso a una espaciosa azotea que ofrece vistas extraordinarias, en ella se encuentran fijos anemómetros, pluviómetros, termómetros de máxima y mínima y otros aparatos para observaciones meteorológicas.
Subiendo por una escalinata en espiral, se penetra en donde una maquina de rotación, denominada de relojería, mueve un colosal farol de cristales escalonados y concéntricos que abre y esparce la luz del mechero o foco, que se halla en otro departamento mas elevado y dentro del reverbero.
El coste del edificio ascendió a 300.715 reales y el del aparato a 69.641,52 francos, según los apuntes de la obra de Antonio Ramos Espinosa de los Monteros, en la obra Faros españoles del Mediterráneo, encontramos las cantidades de 286.160 reales el costo de la linterna y óptica y 175.937 reales la torre y el edificio.
memoria año 1942
Servicios dependientes de la Dirección General de Puertos y Señales marítimas
A cargo de la jefatura de Obras Publicas de Ceuta están el Faro de primer orden de Ceuta y la sirena de Punta Almina. El primero esta situado en el monte Hacho a 148 metros sobre el nivel del mar, con alcance de 38 millas y apariencia de un grupo de dos relámpagos blancos cada diez segundos.
Su situación es:
- 35º53’40” Latitud Norte
- 005º16’50” Longitud Oeste
Sistema de iluminación: lampara sistema “Chance”, de incandescencia por vapor de petróleo comprimido con capillo de 85mm. De diámetro. La óptica esta dispuesta para producir la apariencia antes indicada. Cada vuelta del aparato se efectúa en 20 segundos. La óptica consta de cuatro paneles catadióptricos de 70 cm. De distancia focal que abarcan (cada uno de ellos) en sentido horizontal, un ángulo de 90 grados sexagesimales.
Todo el sistema giratorio flota sobre mercurio, guiando el movimiento de rotación galets verticales y horizontales con sus correspondientes caminos de rodaduras.
El mecanismo de rotación es un aparato de relojería con motor de peso y regulación con freno de fricción. La sirena de Punta Almina es marca AGA accionada por aire a presión; esta situada muy cerca del faro y a cota bastante mas baja. El aire es comprimido mediante cuatro grupos motocompresores semi-diésel marca “ELLWEL” que queman gas — oíl.
Dos de los grupos desarrollan 12/16 H.P. y dan 400/500 revoluciones. Los otros dos son de 9H.P. y 600 revoluciones.
óptica del faro de San Sebastián (Gerona)
Aparato de primer orden con óptica giratoria dióptrica catadióptrica. Esta óptica procede del antiguo faro de Ceuta y sustituye a la antigua óptica instalada en 1857 que sólo tenía un alcance en tiempo ordinario de 23 millas. Según la Real Orden de 11 de diciembre de 1917, la óptica del Faro de San Sebastián debía ser de espolones blancos equidistantes y de un alcance de 30 millas. Para ello, no era posible aprovechar la óptica ya existente, sino que se aprovechó para reformar y recuperar la del antiguo faro de Ceuta. Para conseguir la nueva apariencia, se encargó a la empresa La Maquinista Valenciana su adaptación a un basamento con flotador de mercurio y accionado por una máquina de relojería de gravedad y movimiento persistente. Con esta reforma quedaba instalada el 24 de septiembre de 1924, la nueva óptica con un alcance de 20 millas por la luz fija y 31 millas por la luz deslumbrante. El nuevo Plan General de Obras Públicas de 11 de abril de 1939 contemplaba convertir este faro en aeromarítimo. Así, en 1966 está ya en funcionamiento una nueva óptica aeromarítima de 375 mm de distancia focal compuesta de cuatro paneles catadióptricos con lentes productoras de haz aéreo, fabricado por Barbier; Iluminación trifásica de 3.000 w y grupo electrógeno de 12 KVA.
fotos antiguas
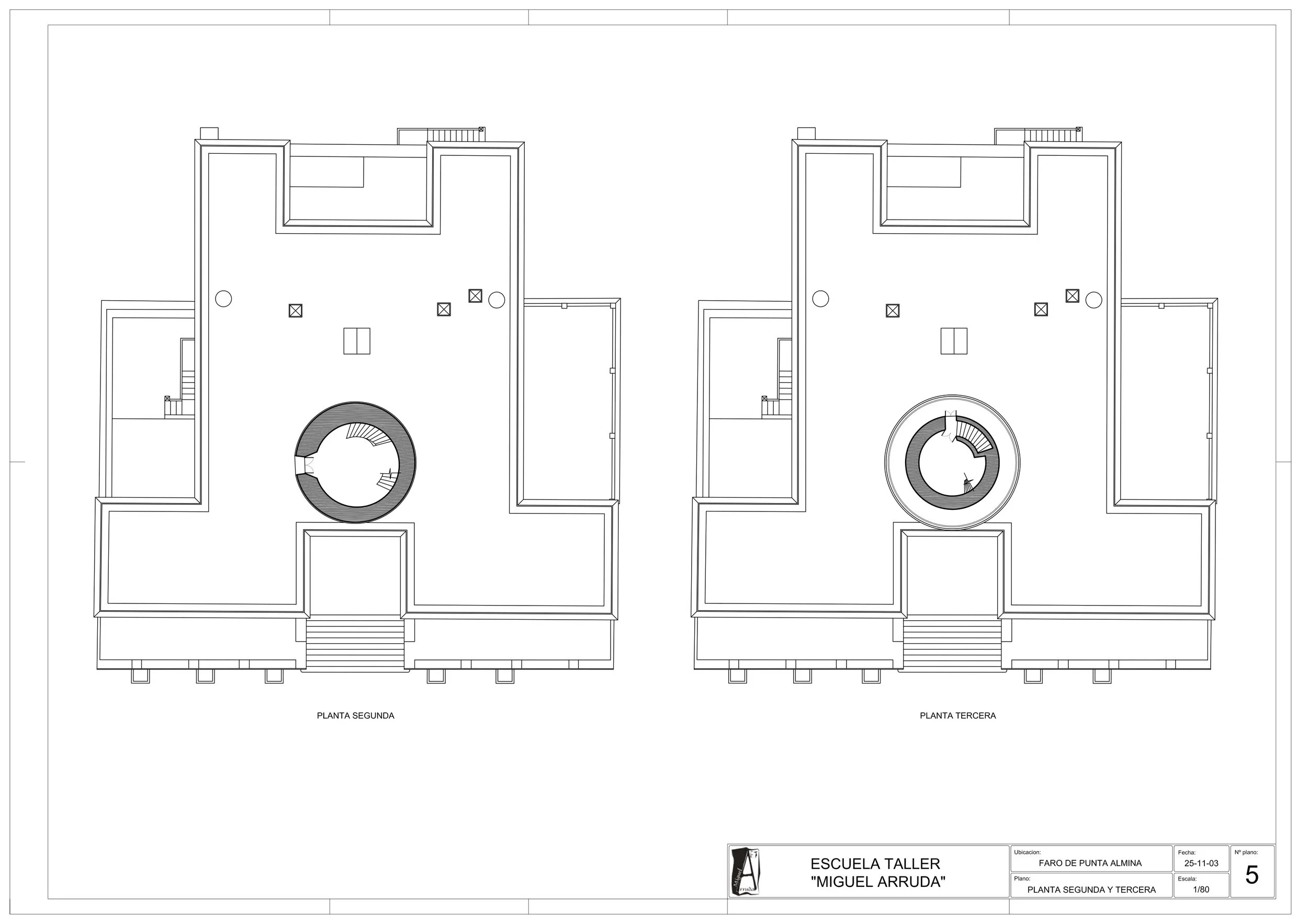
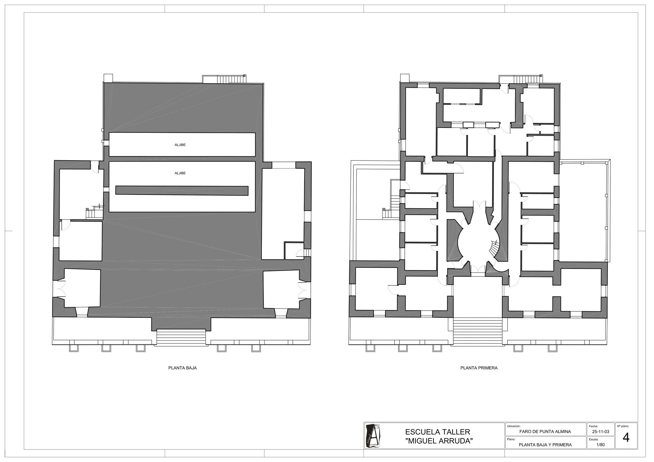
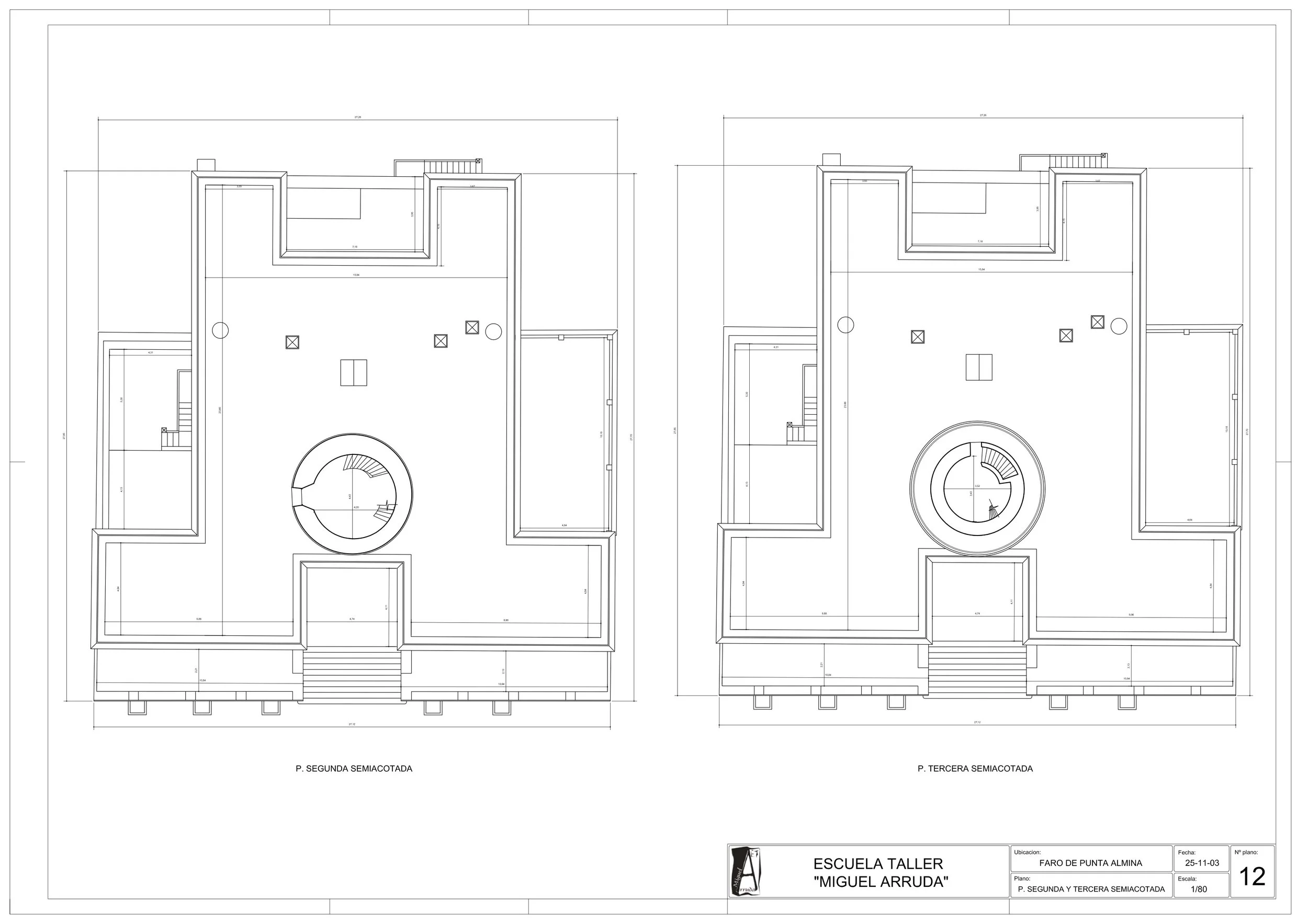
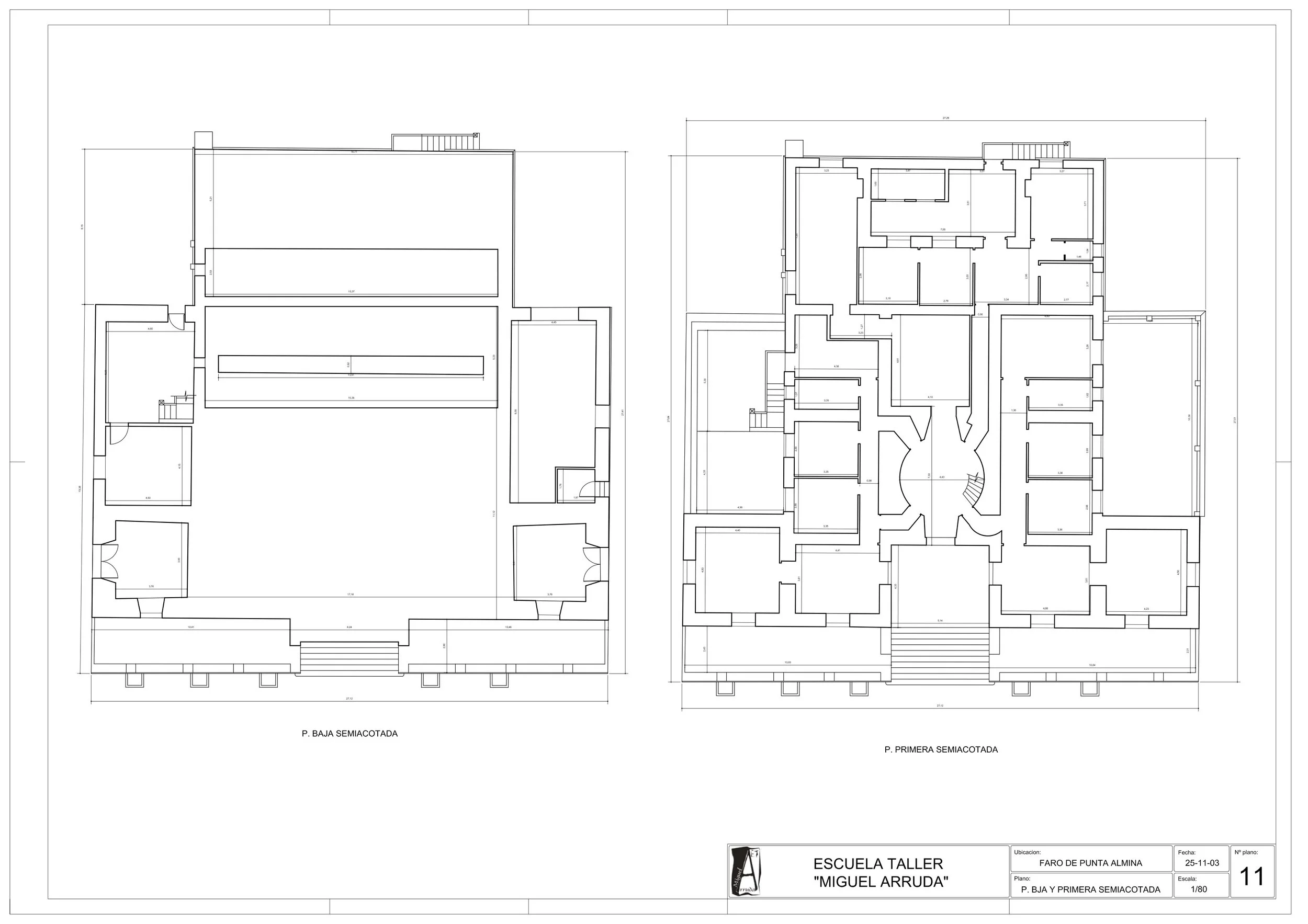
planos antiguos
planos antiguos de la óptica
Planos originales del “Plan General para el alumbrado marítimo de las costas y puertos de España e Islas adyacentes” de la Comisión especial de faros.

