Cuartel del Serrallo
RI-51-0010125-00000
DEFENSA
Ref. Catastral: 55101A001003790000SB
Ingeniero: Pedro Vives y Vich
Siglo XX
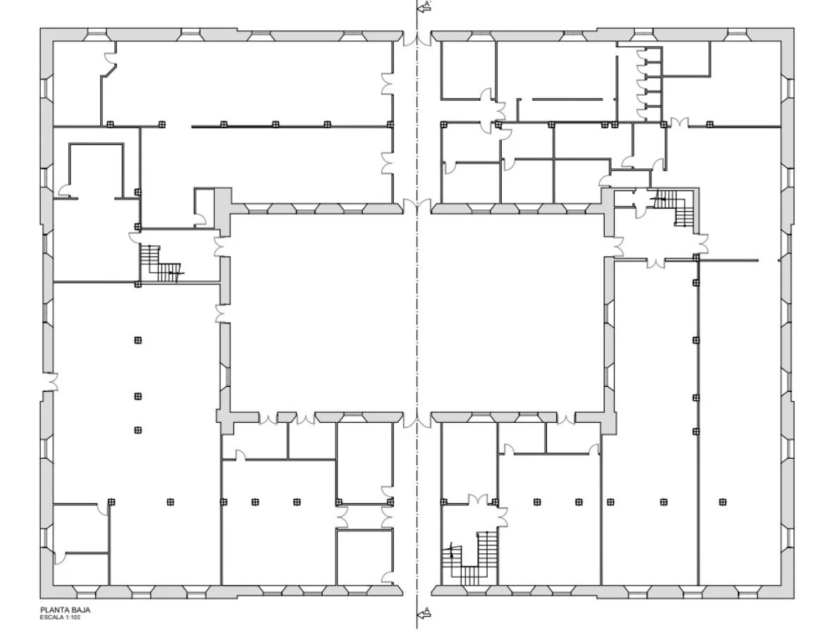
DESCRIPCIÓN DEL ELEMENTO
Acuartelamiento de planta rectangular desarrollado en planta baja, primera, segunda y cubierta. Dotada de patio interior. Planta baja edificada con muros de piedra y aberturas en la misma a modo de arcos ojivales; distribuida en dependencias habilitadas para su uso como acuartelamiento. La cubierta es de tipo inclinada a dos aguas, distribuida en ocho paños. Se encuentra habitado en la actualidad con continuo uso y adecuado mantenimiento.
ENTORNO AFECTADO
Campo exterior, sobre la cresta de Loma larga. Lindando cal Norte con Ctra. N353; al Este con resto de acuartelamiento; al Sur con "Loma de Casa Blanca" ya l Oeste con Instalaciones de planta de hormigonado. Lindando con parcelas 124,69,52 y 12 del Campo Exterior de Ceuta.
fotos antiguas
planos antiguos
plano del Serrallo, como era cuando lo tomaron las tropas españolas por Enrique Amado, el 7 de septiembre de 1860
Biblioteca Virtual de Defensa

