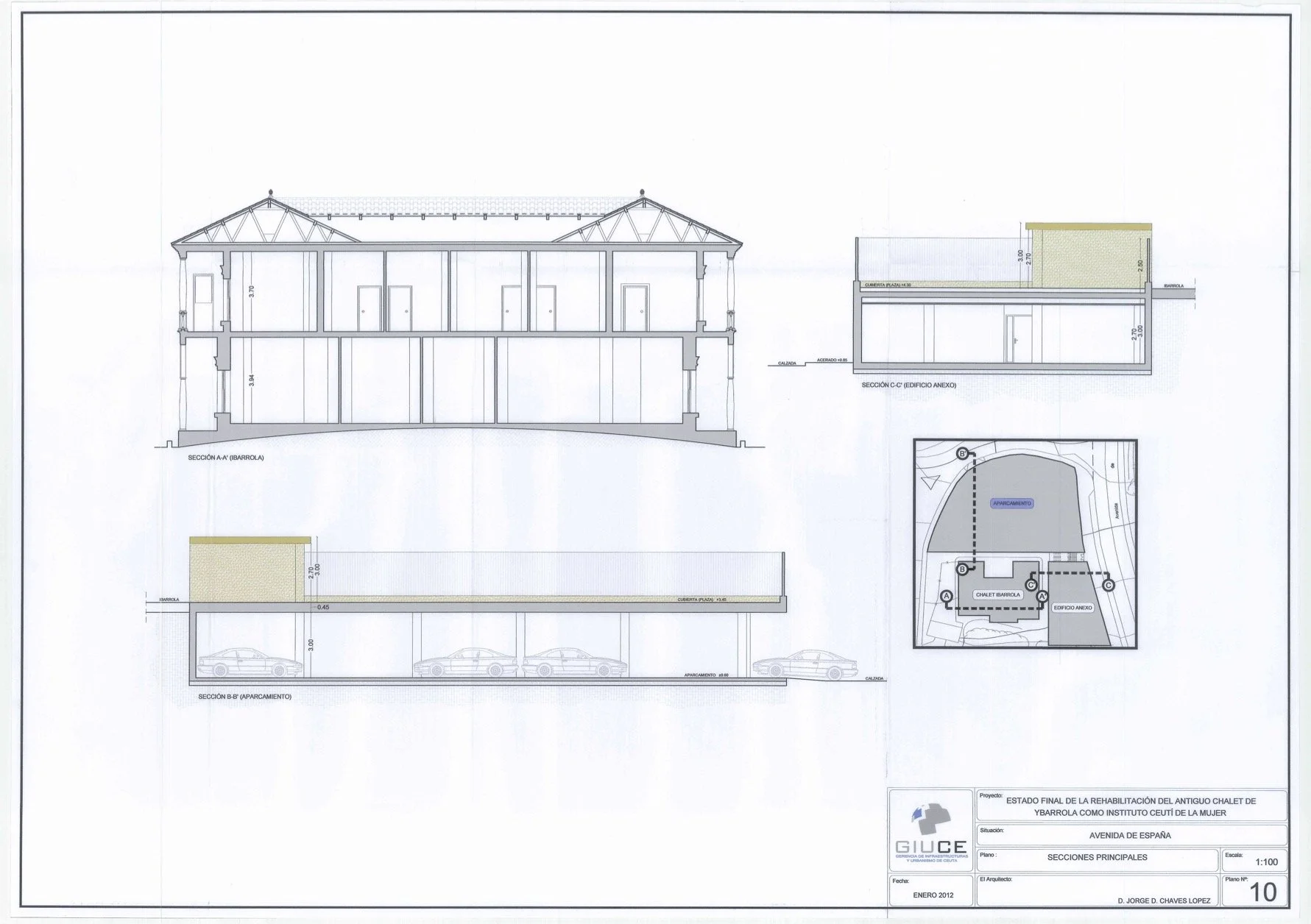
Chalet Ybarrola
Protección Estructural E-048
Ref. Catastral: 9749219TE8794N
Arquitecto: Desconocido
1927
IDENTIFICACIÓN
Tipo: arquitectura civil
Subtipo: administrativo
DESCRIPCIÓN
Fecha: 1927
Estructura: edificación exenta de carácter singular
Cubierta: a cuatro aguas de teja cerámica
ACTUACIONES
Se permiten actuaciones relativas a obras de restauración, de rehabilitación y de reestructuración. Realización del Informe de Evaluación de Edificio regulado en la Real Decreto Legislativo 7/2015 de 30 de octubre, por el que se aprueba el texto refundido de la Ley de Suelo y Rehabilitación Urbana

