Batería de Valdeaguas
HN09
Referencia catastral:
Ingeniero:Luis Sánchez de la Campa
siglo XIX
DESCRIPCIÓN
La Batería de Valdeaguas, se encuentra situada en la costa norte del Monte Hacho, entre las baterías de Pino Gordo y el isleo de Santa Catalina.
Está situada a la cota 18 m sobre el nivel del mar. Esta batería fue proyectada para dos cañones Krupp en noviembre de 1884. Estas obras se ejecutaron entre los años 1885 a 1888. En 1900 se redactaría un segundo proyecto, para reformar y ampliar la batería, añadiendo una tercera plataforma para albergar en ella otro cañón Krupp que sería trasladado desde la batería de Punta Negra.
DATOS CONSTRUCTIVOS
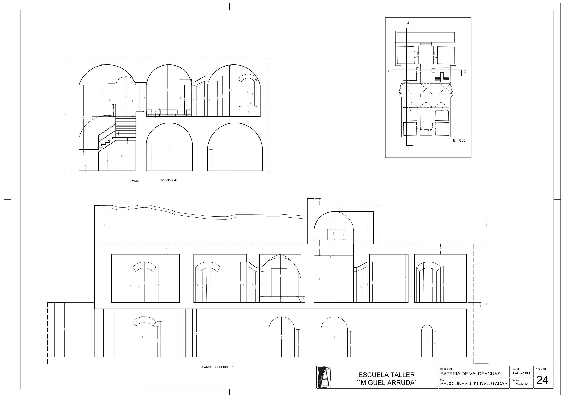
La Batería de Valdeaguas, está compuesta por tres explanadas, diseñadas para albergar en ellas 3 cañones Krupp. Entre la primera y segunda explanada (de oeste a este), se sitúa el primer través, compuesto por dos plantas enterradas y ventiladas por un patio atalaludado. En la planta baja de este primer cuerpo se disponen dos bóvedas que servían de alojamientos para la tropa, pudiendo albergar hasta 30 individuos en cada una de ellas y dos locales para proyectiles vacíos.
En la planta principal, se disponía un dormitorio para el oficial, y los locales que se destinaban a repuestos de piezas, los locales para confección de cargas, proyectiles cargados y taller para su preparación.
Entre la segunda y tercera explanada, se encuentra el segundo través, donde se localizan dos locales a prueba de 9m2 cada uno, unidos por una galería también a prueba para cartuchos hechos y proyectiles cargados; existe un tercer local al extremo de la galería, se destinaba a estopines y espoletas de la 3ª pieza.
fotos antiguas
planos antiguos
Proyecto de la batería de Valdeaguas en Ceuta en 1884 / por Luis Sánchez de la Campa; Comandancia Exenta de Ingenieros de Ceuta.
Proyecto de la batería de Valdeaguas en Ceuta en 1884 / por Luis Sánchez de la Campa; Comandancia Exenta de Ingenieros de Ceuta.
Proyecto de la batería de Valdeaguas en Ceuta en 1884 / por Luis Sánchez de la Campa; Comandancia Exenta de Ingenieros de Ceuta.
Proyecto de la batería de Valdeaguas en Ceuta en 1884 / por Luis Sánchez de la Campa; Comandancia Exenta de Ingenieros de Ceuta.
Batería de Valdeaguas - Comandancia de Ingenieros de Ceuta. Escala 1:1.000 Relieve representado con sombreado, el mar con tinta azul. Orientado con flecha Localización de las piezas de la batería, con indicación de cantidad, tipo y calibre. (3 C.A. Krupp 26cm giro central)
Dos planos de la batería de Valdeaguas de Ceuta en 1900 / Carlos Gª Pretel
Dos planos de la batería de Valdeaguas de Ceuta en 1900 / Carlos Gª Pretel
Plano del proyecto de instalación de un cañón Krupp de 26 centímetros en vez del Trubia de 24 centímetros ahora instalado en la batería de Valdeaguas en Ceuta en Ceuta en 1890 por Luis Sánchez de la Campa. Las carriladas verdes son las actuales. Idem azules del cañon Krupps.
Nuevo anteproyecto de construcción de almacenes para pólvora y cartuchería metálica en Ceuta en 1896 / formado por el Capitán del Cuerpo Don Roberto Fritschi y García. Hoja 1. Plano de situación.
Nuevo anteproyecto de construcción de almacenes para pólvora y cartuchería metálica en Ceuta en 1896 / formado por el Capitán del Cuerpo Don Roberto Fritschi y García. Hoja 2. Plano y perfiles del nuevo polvorín.
Nuevo anteproyecto de construcción de almacenes para pólvora y cartuchería metálica en Ceuta en 1896 / formado por el Capitán del Cuerpo Don Roberto Fritschi y García. Hoja 3. Plano, perfil longitudinal y transversales del camino al nuevo polvorín.
Nuevo anteproyecto de construcción de almacenes para pólvora y cartuchería metálica en Ceuta en 1896 / formado por el Capitán del Cuerpo Don Roberto Fritschi y García. Hoja 4. Plano y perfiles del polvorín de Santa Catalina
Nuevo anteproyecto de construcción de almacenes para pólvora y cartuchería metálica en Ceuta en 1896 / formado por el Capitán del Cuerpo Don Roberto Fritschi y García. Hoja 5. Planta y perfiles de los polvorines de Valdeaguas, San Hipólito y de los almacenes de cartuchería metálica.
Plano de las baterías de Torremocha, Valdeaguas y del Pintor de Ceuta en 1898 / por el Coronel Ingeniero Comandante exento Julio Bailo; Comandancia Exenta de Ingenieros de Ceuta; tomado del plano parcelario del Monte Acho en 1893 por el Capitán de Ingenieros José Madrid y el Capitán Alberto Campos y Guereta.
Proyecto de ampliación de la Batería de Valdeaguas con un cañón Krupp de 26cm en montage de giro adelantado. Hoja Nº 3, Plano y perfiles de la ampliación de la batería [CE-37/21]
Batería de Valdeaguas. 1945.
fotos actuales
planos actuales
expediente
Dirección Provincial Ministerio de Cultura

