Fortín y batería de Punta Almina
Ref. catastral: 55101A002003180001DJ
HE02
(R.I.) - 53 - 0000500 - 00013
Ingeniero: Desconocido
Siglo: XVIII
Texto extraído del artículo publicado en el número 42 de la revista Almoraima (2011), El conjunto histórico del Recinto del Hacho de Ceuta. Elementos del siglo XVIII, de Pedro Gurriarán Daza, Ángel J. Sáez Rodríguez y Salvador García Villalobos.
DESCRIPCIÓN
Es un fuerte costero de artillería localizado en el extremo nororiental de la península del Hacho, en un emplazamiento estratégicamente clave para controlar con sus cañones la zona intermedia del frente oriental de la península del Hacho, en Ceuta, entre las baterías de Santa Catalina por el norte y del Desnarigado por el sur. Su misión supera la preocupación más básica de dominar las calas en las que podían hacerse desembarcos para ampliarse al dominio de las aguas ceutíes, al objeto de impedir siquiera la aproximación de embarcaciones hostiles que quisiesen rodear Punta Almina rumbo al Estrecho y el Atlántico.
Conforma una interesante fortificación artillera que se construye adaptándose al terreno de forma mimética
Consta de una batería a la barbeta que se complementa con dos crujías habitables cerrando el conjunto hacia el monte. Se accede al conjunto a través de un corredor protegido por una alta tapia donde se abren aspilleras para fusileros. Su origen se remonta a las décadas centrales del siglo XVIII. Coincidiendo con las campañas de refortificación acometidas en las décadas centrales de la centuria, tras el prolongadísimo asedio de Muley Ismail, en el perímetro del Hacho se construyen distintas obras, como el camino cubierto del frente sur y algunos puntos artillados como las baterías de punta Almina, Palmera o el Quemadero.
La serie de lienzos de muralla que recorren la costa norte de la península de la Almina, desde San Pedro, por San Amaro y Santa Catalina, hasta la cala siguiente, antes de punta Almina no alcanzaron nunca Punta Almina. No era preciso dado lo agreste del terreno en ese extremo nordeste de la península, con costas acantiladas e imposibles para hacer desembarcos.
La Batería de Punta Almina controlaba con sus cañones la zona central del frente oriental de la península del Hacho, en Ceuta, entre los fuertes del Desnarigado, por el sur y de Santa Catalina, por el norte. Su misión supera la preocupación más básica de dominar las calas en las que podían hacerse desembarcos para ampliarse al dominio de las aguas ceutíes, al objeto de impedir siquiera la aproximación de embarcaciones hostiles que quisiesen rodear Punta Almina rumbo al Estrecho y el Atlántico y ciñéndose a la costa.
Éste es un concepto estratégico más agresivo que el representado por los fuertes y baterías de costa que se destinaban a defender lugares aptos para el desembarco, tales como el Desnarigado. El triunfo ante los marroquíes y las nuevas pretensiones de España como potencia en el reinado de Felipe V se ven reflejados en este cambio conceptual. La secuencia Quemadero, Palmera, Desnarigado y Punta Almina expone claramente la concepción de extender el poder de la artillería real mucho más allá de las murallas, baluartes y fortines de la plaza norteafricana.
El fuerte se construyó a 75 metros de altura, cuando las pronunciadas pendientes que bajan hasta las aguas del Mediterráneo se vuelven algo menos inclinadas, antes de continuar ascendiendo hasta la cresta de la montaña. Se trata de una fortificación artillera que muestra una clara adaptación topográfica, lo que condiciona por completo su diseño. Debido a la escasa superficie llana disponible, la plataforma artillera se encuentra unida a las estancias cuarteleras que se extienden por su gola. A diferencia de los diseños habituales de la época, no existe separación entre una y otras. Las posiciones fortificadas artilladas y aisladas del XVIII actúan habitualmente como entidades autónomas. Han de ser capaces tanto de cumplir su misión fundamental de proyectar el poder de su artillería al radio que tienen asignado como de repeler el ataque de pequeñas unidades desembarcadas que pudiesen alcanzar su posición. En tales casos, la capacidad de aislar la zona de cuarteles y almacenes de la batería (ésta siempre más accesible por disponerse a la batería y, por tanto, con limitada dificultad ante la escalada de fuerzas hostiles) había de permitir la defensa con armas portátiles (granadas de mano y mosquetes) hasta la llegada de fuerzas de caballería que ayudasen a repeler la agresión y recuperar el terreno. Así ocurre con los fuertes de costas altas del Campo de Gibraltar¹, con las torres-hornabeque o baterías para dos cañones de costas llanas del litoral oriental andaluz y con los fuertes para cuatro cañones y destacamentos de caballería que salpican la costa desde Sabinillas (Málaga) a la Batería de San Ramón de Rodalquilar, en Níjar (Almería)².
En nuestro caso, los edificios en los que se aloja, vive y cocina la tropa están prácticamente adosados a la ladera, apenas aislados por detrás y fían toda su defensa a un perímetro murado y aspillerado orientado al mar, lo que hacía que la posición fuese muy vulnerable frente a fuerzas enemigas desembarcadas. La puerta del pequeño acuartelamiento ya se muestra claramente vulnerable, al presentar un frente muy angosto hacia el exterior y sin posiciones defensivas que la dominen con claridad. Todo esto hace indicar que se trata de un fuerte orientado en exclusiva hacia el mar, que sólo esperaba combatir contra fuerzas que le llegasen de frente, sin realizar maniobras envolventes (algo poco improbable por lo agreste del terreno), pero que también podrían presentarse por los flancos o la retaguardia, sin que se pudiese, en estos casos, repelerlas.
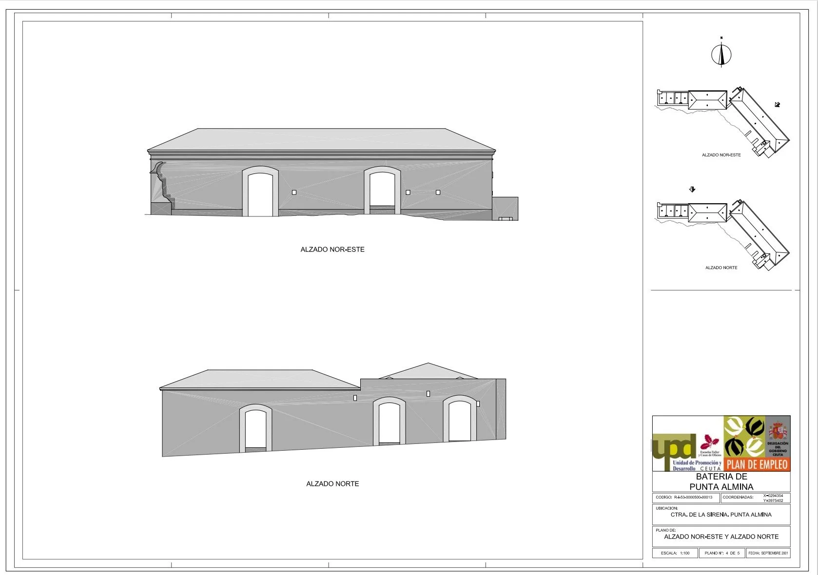
Dispone de dos barracones para los usos habituales, incluidos la cocina, los almacenes y el repuesto de pólvora. Se disponen longitudinalmente desde la puerta de entrada hasta el extremo opuesto, donde finaliza el fuerte por el este. Allí, en aquel extremo, se sitúa la letrina, colgada sobre el acantilado y con techumbre hoy desaparecida. Entre ambos barracones existe un pilón para agua. Un parapeto aspillerado y sostenido por contrafuertes exteriores conforma el pasadizo de entrada, enfrente de la fachada del primer grupo de estancias. Las aspilleras se encuadran con ladrillo en muros de mampostería. A continuación se dispone la amplia batería, de 18 metros de ancho por 16 en su zona más dilatada, ya que dibuja una superficie ultrasemicircular irregular, capaz para tres o cuatro cañones y algún mortero. De hecho, sabemos que en 1775 tenía “tres cañones de hierro de marina del 21 (sic)”³. Como se ha indicado, su pretil es a la barbeta, con solería de losas de piedra y cordón magistral realizado con ladrillo visto de extremos redondeados.
SÁEZ RODRÍGUEZ, A. J., “El Campo de Gibraltar tras el Gran Asedio. Estado de su defensa en 1796", VII Jornadas de Historia del Campo de Gibraltar (Castellar de la Frontera-2002), Almoraima, vol. 29, Algeciras, 2003, pp. 365 a 390.
GIL ALBARRACÍN, A., Documentos sobre la defensa de la costa del Reino de Granada (1497-1857), GBC Editora, Almería- Barcelona, 2004, p. 435.
RUIZ OLIVA, J. A., Op. Cit., p. 474. El dato debe estar equivocado, ya que no existieron cañones de ese “calibre” en el siglo XVIII en España ni en Europa Occidental. Dado el tipo de batería y su emplazamiento, debería referirse a piezas de a 24 y la cifra de “21” sería una errata.
fotos antiguas
fotos actuales
planos actuales

