Ayuntamiento
Protección integral I-001
Ref. Catastral: 1143607TE9714S
Arquitecto: José Romero Barrero
1926
IDENTIFICACIÓN
Tipo: Arquitectura civil.
Subtipo: Administrativo.
DESCRIPCIÓN
Fecha ampliación: 1926
Estructura: Edificio de tres plantas en esquina entre medianeras formando manzana.
Cubierta: Plana
ACTUACIONES
Se permiten actuaciones relativas a obras de restauración y de rehabilitación. Realización del Informe de Evaluación de Edificio regulado en la Real Decreto Legislativo 7/2015 de 30 de octubre, por el que se aprueba el texto refundido de la Ley de Suelo y Rehabilitación Urbana.
fotos antiguas
planos antiguos
planos del proyecto firmado por el arquitecto provincial José Romero en 1911
Archivo General de Ceuta
fotos actuales
planos actuales
expediente
Dirección Provincial Ministerio de Cultura
visita virtual
vídeo
antecedentes
concursos
GALERIA DE PREMIADOS CONCURSO
PRIMER PUESTO
Antonio Cruz y Antonio Ortiz.
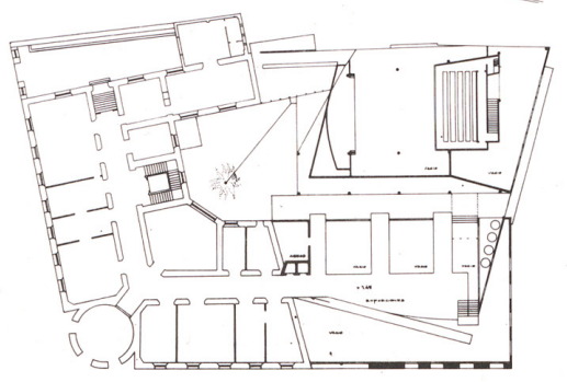
Planta baja
Planta semisótano
Planta principal
Planta de ático
Alzado a Gran Via
Alzado a calle Gómez Marcelo
Perspectiva
SEGUNDO PUESTO
Enrique Perea, Gabriel Ruiz Cabrero y Álvaro Soto
Planta baja
Planta semisótano
Planta tipo (1ª, 2ª, 3ª)
Planta ático
Planta de torreones
Planta de cubierta
Alzado a la Gran Vía
Alzado a Hermanos Gómez Marcelo
Sección transversal
TERCER PUESTO
Enric Miralles y Carme Pinos.
Planta baja
Planta primera
Planta segunda
Planta tercera
Sótano 1
Sótano 2
Perspectiva
Alzado
Sección
Plano de situación
CUARTO PUESTO
Carlos Revuelta y Juan Carlos Albert.
Planta baja
Planta sótano 1
Sección 3
Sección 4
Perspectiva
QUINTO PUESTO
Fernando Carrascal, José M. Fernández de la Puente, Alberto Torres y Félix Pozo.
Planta baja
Planta principal
Planta ático
Alzado
Perspectiva
publicaciones
Arquitectura.
Revista del Colegio Oficial de Arquitectos de Madrid, nº249. Julio - Agosto 1984.

