Viviendas
Protección Ambiental A-034
Ref. catastral: 1843010TE9714S
Arquitecto: Desconocido
IDENTIFICACIÓN
Tipo: Arquitectura Civil
Subtipo: Residencial
DESCRIPCIÓN:
Edificio en esquina entre medianeras de cuatro plantas formando manzana
Cubierta: plana
ACTUACIONES:
Se permiten actuaciones relativas a obras de restauración, de rehabilitación, de reestructuración y de recuperación tipológica.
fotos antiguas
fotos actuales
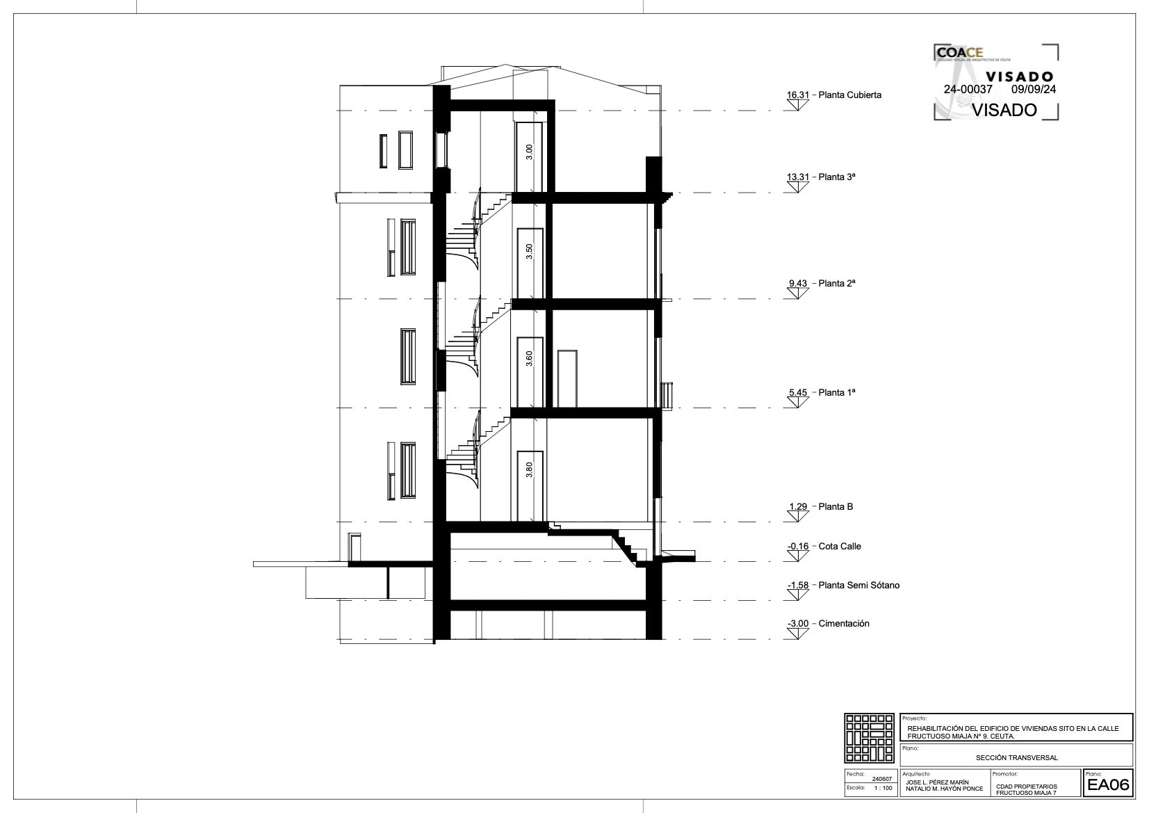
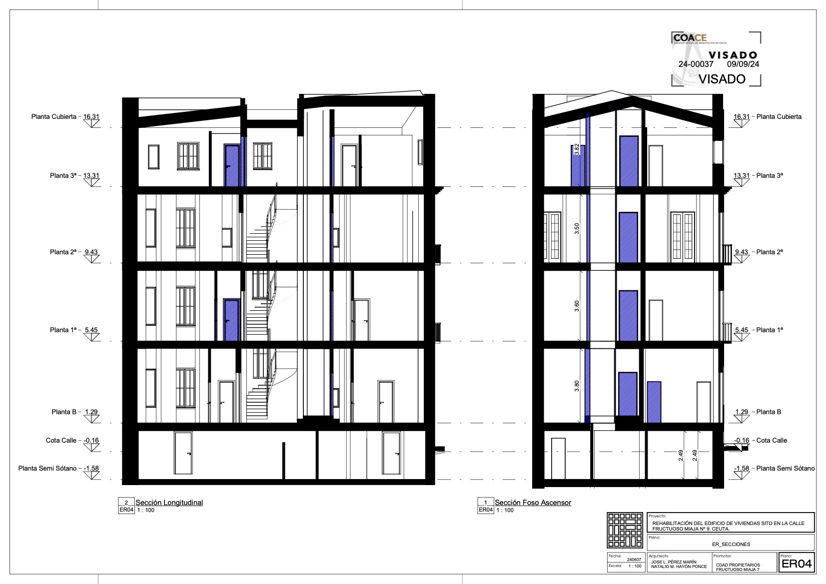
planos actuales
expediente
Dirección Provincial Ministerio de Cultura

